Моторный замок Alabay Up-Lock

ALABAY Up-Lock

Моторный замок с «интеллектом».

ALABAY Up-Lock — это четырехригельный моторный замок, который был разработан специально для металлических дверей. Его главной особенностью является возможность управления другими электромеханическими замками, а также уникальный встроенный контроллер управления с 4 входами, который дает самые широкие возможности интеграции замка с различными электронными системами, замками, дверными «бугельными» ручками, для решения разных задач.

Прежде всего Up-Lock задумывался для работы в паре с электромеханическим замком Alabay Latch.
Основной функционал работы двух замков выглядит следующим образом: Up-Lock принимает команду на открытие, которая поступает через какое-либо устройство идентификации. Сначала он открывает свою ригельную группу, а затем подает команду на открытие защелки Alabay Latch. После закрытия двери ригельная группа Up-Lock автоматически закрывается по команде от встроенного датчика состояния двери. Таким образом, основной прижим двери приходится на 20мм защелку замка Alabay Latch, а 18мм ригельная группа моторного замка открывается и закрывается свободно без нагрузок.
Также, замок Alabay Up-Lock всегда можно открыть или закрыть механическим способом.

Автоматическое запирание замка Alabay Up-Lock можно легко отключить. Для этого необходимо просто открыть замок механическим способом. С этого момента замок перестанет реагировать на датчик состояния двери (геркон), но продолжит управлять защелкой нижнего замка Alabay Latch. Чтобы вернуть автоматическое запирание, нужно механическим способом закрыть Alabay Up-Lock.


Зачем замку Up-Lock четыре входа управления?


Вероятно, у большинства возникает именно такой вопрос. В принципе, можно обойтись и одним входом, подключив к нему всё: и внутреннюю кнопку «Выход», и контроллер системы управления доступом или контроллер «Умного дома». Однако, когда вы устанавливаете замок в дверь, оснащенную «бугельными»» ручками, где внутренняя ручка должна открывать всё и всегда, а наружная - по обстоятельствам, будь то открытый верхний замок или удачно пройденная идентификация цифрового ключа, открыть всё или только ригельную группу замка - начинают возникать разного рода технические проблемы, решение которых мы постарались реализовать в замке Alabay Up-Lock.

Назначение Входов замка
  • ВХОД 1:
    При активации входа открывается ригельная группа Up-Lock, затем подается команда на открытие защелки нижнего замка Latch 72.1
    Назначение:
    Вход целесообразно использовать для подключения внутренней кнопки «Выход», когда по команде на «Вход 1» открываются все установленные в двери электромеханические замки.
  • ВХОД 2:
    При активации входа открывается только ригельная группа Up-Lock. Если в течение 30 сек. «Вход 4» будет замкнут на минус питания, то последует команда на открытие защелки нижнего замка Latch 72.16. Если за указанный период времени «Вход 4» останется незадействованным, ригельная группа Up-Lock автоматически закроется.
    Назначение:
    Вход целесообразно использовать для подключения какого-либо контроллера управления замком системы СКУД или «Умного дома». Вход открывает только верхний замок Up-Lock, для открытия второго, нижнего замка необходимо «доказать» присутствие человека с наружной стороны двери. Для этого к «Входу 4» можно подключить: «Датчик движения», кнопку или сенсорный модуль L-Touch, установленные в наружной «бугельной ручке» двери.
  • ВХОД 3:
    При активации входа, если замок Up-Lock закрыт, то ничего не происходит. Если замок Up-Lock открыт, то поступает команда на открытие защелки нижнего замка Latch 72.16.
    Назначение:
    Вход целесообразно использовать для подключения наружной «бугельной ручке» двери, оснащенной механической, электронной кнопкой открытия или сенсорным модулем L-Touch. «Вход 3» удобно использовать, когда конфигурация двери предусматривает следующий режим работы: при открытом верхнем замке Up-Lock наружная и внутренняя ручка двери (кнопки) управляют защелкой нижнего замка Latch 72.16 без какой-либо дополнительной идентификации. Данная конфигурация двери больше всего подходит для загородного дома.
  • ВХОД 4:
    Вход 4 - это информационный вход, расширяющий возможности Входа 2.
    Назначение:
    Вход целесообразно использовать для подключения датчика движения подтверждающего наличия человека перед дверью или подключения наружной «бугельной ручки» двери, оснащенной кнопкой или сенсорным модулем. В этом случае «Вход 3» не задействуется.

Варианты подключения

Основные конфигурации подключения Alabay Up-Lock в дверях с «бугельными» ручками
Данная схема подключения характерна тем, что при отключении функции «Автозакрытие» дверь остается открытой для свободного прохода. То есть при срабатывании сенсора с внутренней или наружной стороны двери открывается защелка нижнего замка Latch 72.16.
Конфигурация «Частный дом»
Дверь с «бугельными» ручками, оснащенными сенсорными кнопками или модулями L-Touch.
Данная схема подключения характерна тем, что при отключении функции «Автозакрытие» дверь остается закрытой на защелку нижнего замка. Чтобы открыть дверь с внутренней стороны, всегда требуется идентификация, независимо от того, открыт или закрыт верхний замок Up-Lock.
Конфигурация «Офис / Квартира» I
Дверь с «бугельными» ручками, оснащенными сенсорными кнопками или модулями L-Touch
Данная схема подключения характерна тем, что наружная ручка не имеет средств управления. При поступлении команды на Вход 2, открываются оба замка. Если механически открыть Up-Lock, то открыть защелку нижнего замка с внешней стороны можно только после процесса идентификации.
Конфигурация «Офис / Квартира» II
Дверь с «бугельными» ручками. Внутренняя ручка с сенсорной кнопкой, Внешняя ручка без средств управления.
Alabay Latch 72.16-U чертеж
Схема подключения Alabay Latch 72.16
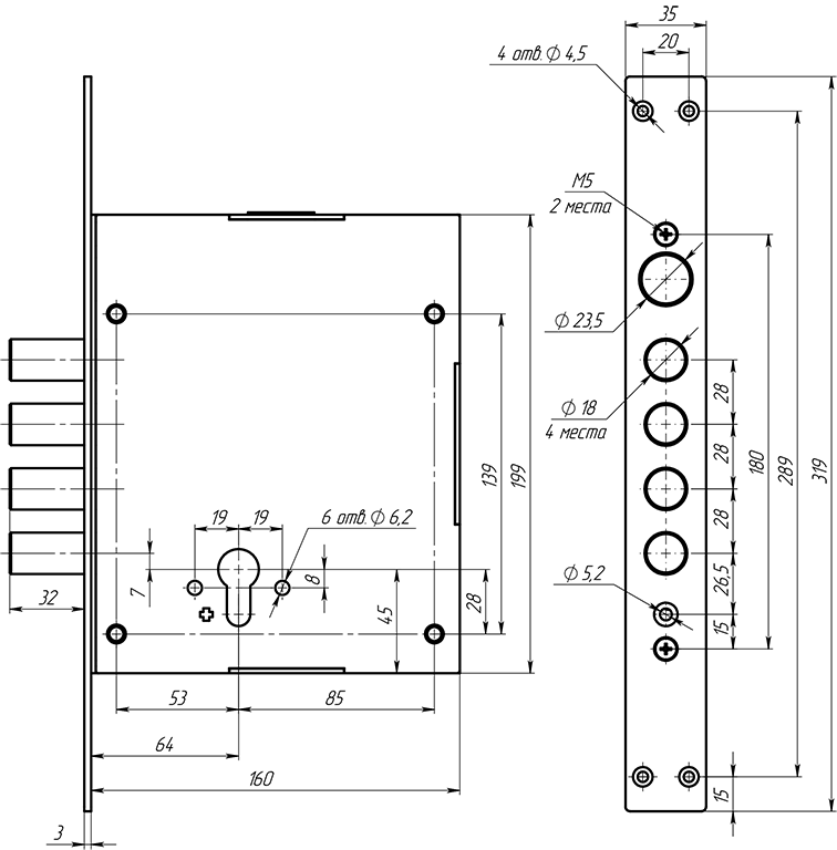
Размеры
  • Напряжение питания DC 12В (4А) - 14В (5А)
  • Выход на дополнительный замок не является "силовым" и предназначен для управления высокоомным входом электронного устройства. Не допускается подключение к нему напрямую обмоток реле, соленоидов, моторов и т.п.
Схема подключения
ДОПОЛНИТЕЛЬНО: замок может комплектоваться сенсорными модулями ручки - L-TOUCH

Конфигурация «Частный дом»
Конфигурация «Офис/Дом»
вер.1
Конфигурация «Офис/Дом»
вер.2
По всем вопросам свяжитесь с нами любым удобным способом:
Телефон: +7(495)132-62-09
©2020 TECKI. Москва, info@tecki.ru